[D0] 518, 519 Ruzyně - Suchdol - Březiněves

Odpovědět
kot
Příspěvky: 13956
Registrován: 17.6.2010 0:19:32

Re: [D0] 518, 519 Ruzyně - Suchdol - Březiněves

Příspěvek od kot »

Tak D0 se nám začíná hýbat na "všech stranách" ! Až podezřele hezký posun...
Aram96
Příspěvky: 10438
Registrován: 13.8.2018 20:56:09
Bydliště: A88-R43-D43-I/43-I/73-?-?

Re: [D0] 518, 519 Ruzyně - Suchdol - Březiněves

Příspěvek od Aram96 »

Posun určitě, ale cesta bude ještě ohromně dlouhá a trnitá.
Každopádně doufám, že se ještě předělají ty přídatné pruhy na dálničních kříženích.
Křižovatky jako takové jsou zde (snad k údivu všech) dobré, jen ty délky hlavně připojovacích pruhů jsou dost mimo. Někdy i počty pruhů. Podobu mají takovou, jaká je tu na jiných křižovatkách pravidelně kritizována (a to zdaleka nejen mnou).
alabastr
Příspěvky: 649
Registrován: 5.11.2017 12:50:18
Bydliště: Praha

Re: [D0] 518, 519 Ruzyně - Suchdol - Březiněves

Příspěvek od alabastr »

ŘSD chystá architektonickou soutěž na podobu Suchdolského mostu
https://zdopravy.cz/rsd-chysta-architek ... tu-164625/
grundyg
Příspěvky: 204
Registrován: 31.5.2009 9:28:50

Re: [D0] 518, 519 Ruzyně - Suchdol - Březiněves

Příspěvek od grundyg »

Za mě klidně copy-paste roku 2009 8-)
viewtopic.php?p=6006#p6006
Haward
Příspěvky: 647
Registrován: 22.10.2014 19:03:04
Bydliště: Roztoky

Re: [D0] 518, 519 Ruzyně - Suchdol - Březiněves

Příspěvek od Haward »

Na konci roku bychom chtěli podat žádost o stanovisko o vlivu na životní prostředí EIA pro celou severní část Pražského okruhu: tedy staveb 518 a 519 mezi Ruzyní a Březiněvsí a pak mezi Březiněvsí a Satalicemi, což je stavba 520
Zdroj: https://www.lidovky.cz/domov/ministr-do ... LN_otvirak
JakubMD
Příspěvky: 599
Registrován: 26.1.2022 10:41:38

Re: [D0] 518, 519 Ruzyně - Suchdol - Březiněves

Příspěvek od JakubMD »

grundyg píše: 12.6.2023 13:57:07 Za mě klidně copy-paste roku 2009 8-)
viewtopic.php?p=6006#p6006
Díky bohu bude nová soutěž. Most navazuje na tunely z obou stran a MÚK, dvoupatrový most je opravdu nesmysl...
Honey72
Příspěvky: 6193
Registrován: 26.12.2015 0:06:38
Bydliště: Trutnov - 17 km od polské dálnice a 29 km od české.

Re: [D0] 518, 519 Ruzyně - Suchdol - Březiněves

Příspěvek od Honey72 »

Jenže dvoupatrový je právě kvůli tomu, aby dle požadavků zabíral co nejméně území a dálnice se mohla zastavěnou částí Prahy protáhnout.
Letos máme výročí 88 let výstavby dálnic na českém území 1938-2026
JakubMD
Příspěvky: 599
Registrován: 26.1.2022 10:41:38

Re: [D0] 518, 519 Ruzyně - Suchdol - Březiněves

Příspěvek od JakubMD »

Navazující úseky budou také dvoupatrové? Nebudou. Finální výběr byl tenkrát zcela špatný. V ceně mostu nebyly započítány rozplety před a za mostem, což je v tomto případě nejen finančně nákladné, ale zároveň i technicky téměř neproveditelné.
S ohledem na výšku mostu nad údolím zde neobstojí ani argument srážkového stínu.
Aram96
Příspěvky: 10438
Registrován: 13.8.2018 20:56:09
Bydliště: A88-R43-D43-I/43-I/73-?-?

Re: [D0] 518, 519 Ruzyně - Suchdol - Březiněves

Příspěvek od Aram96 »

Já tedy též velmi fandím architektonické soutěži. Na takovéhle stavby to má být automatika. Dvoupatrový most mi také přijde nesmysl. 2.patro bych viděl spíš pro cyklostezku (jako na D3) či maximálně pro místní komunikaci. :D Byl by docela sen mít zde oddělenou místní dopravu od dálkové a aglomerační, nyní je to v plánu tak, že ten most bude díky nejbližším sjezdům fungovat i pro vyloženě přebrození Vltavy. :)
kot
Příspěvky: 13956
Registrován: 17.6.2010 0:19:32

Re: [D0] 518, 519 Ruzyně - Suchdol - Březiněves

Příspěvek od kot »

Srážkový stín je bez diskuze úplná pitomost ! Těšme se na soutěž a její návrhy. Ne, že bych byl fanda 2 patrového mostu, ale ze soutěže může klidně vypadnout 2 patrové řešení jako cenově srovnatelné.
Mike
Příspěvky: 6063
Registrován: 15.3.2009 14:09:33

Re: [D0] 518, 519 Ruzyně - Suchdol - Březiněves

Příspěvek od Mike »

ideál je 3 patrový
nahoře 4+4 dálnice
pod tím lokál IAD
a pod tím cyklouni s turisti
Česká zákonodárnost – odpovědným budiž ten, koho lze nejsnadněji chytit
Lynx
Příspěvky: 4488
Registrován: 24.11.2016 8:02:29

Re: [D0] 518, 519 Ruzyně - Suchdol - Březiněves

Příspěvek od Lynx »

Součástí zadání té architektonické soutěže přeci musí být, zda má být ten most patrový nebo ne, protože to musí ladit s navazujícími úseky.

Takže jaké zadání je připravováno? Patrový - ano nebo ne?
Beekee
Příspěvky: 542
Registrován: 11.10.2019 0:03:50

Re: [D0] 518, 519 Ruzyně - Suchdol - Březiněves

Příspěvek od Beekee »

Dle TES 2022/08, podkladu pro EIA, to je už v jedné úrovni.

TES na stránkách ŘSD
https://www.rsd.cz/mapa-staveb#/stavby/ ... =D0&page=0

DO most suchdol.png
DO most suchdol.png (645.6 KiB) Zobrazeno 3199 x

a řez. Lávka je vpravo s výhledem jen na Prahu (ale to by asi mohlo být předmětem té soutěže, ne?!).
DO most suchdol rez.png
DO most suchdol rez.png (164.69 KiB) Zobrazeno 3191 x
Beekee
Příspěvky: 542
Registrován: 11.10.2019 0:03:50

Re: [D0] 518, 519 Ruzyně - Suchdol - Březiněves

Příspěvek od Beekee »

K předchozímu ještě dodávám, že se v textu popisuje i alternativa, ale pouze z hlediska nivelety.

V úseku stavby SOKP 518 byla společností PRAGOPROJEKT, a.s. prověřována alternativní možnost
realizace raženého tunelu Suchdol namísto hloubeného, tzn. niveleta na rozhraní staveb SOKP 518
a 519 by byla oproti stabilizované variantě o cca 13 m níže. Směrové vedení SOKP je v této
alternativě shodné se stabilizovanou variantou. ...



Jinak ještě jsem zabrousil do EIA, zjišťovací řízení 2019, které s odkazem na TES 2018 přidává vizualizaci mostu. V textu se mj. uvádí, že úrovňový most je na požadavek investora. Ani zde není patrová alternativa. Čili s úrovňovým mostem se počítá už dost dlouho...

Most TSE 18-06.jpg
Most TSE 18-06.jpg (144.14 KiB) Zobrazeno 3142 x

Pozn. Předpokládám, že tento screenshot už někde v historii této diskuze je, nezkoumal jsem to. I kdyby, myslím, že pro osvěžení paměti se hodí to repostovat.
grundyg
Příspěvky: 204
Registrován: 31.5.2009 9:28:50

Re: [D0] 518, 519 Ruzyně - Suchdol - Březiněves

Příspěvek od grundyg »

On ten boční profil by takhle vypadal asi lépe než dvoupatrák. Srážkový stín vzal čert. Ale ať vypadá jak chce, hlavně ať už stojí a nevypisuje se za dalších 14 let opět "architektonická soutěž" :roll:
kot
Příspěvky: 13956
Registrován: 17.6.2010 0:19:32

Re: [D0] 518, 519 Ruzyně - Suchdol - Březiněves

Příspěvek od kot »

Tak pokud má být most v soutěži pouze úrovňový, pak se toho moc rozdílného s touto vizualizací nevymyslí. Navíc pokud je přání investora mít boční pohled subtilní.
michal
Příspěvky: 6129
Registrován: 14.3.2009 8:53:04

Re: [D0] 518, 519 Ruzyně - Suchdol - Březiněves

Příspěvek od michal »

Koukám na tu vizualizaci i situačku a marně hledám místo pro silnici do Roztok, ve které stojí ty západní pilíře mostu :D
Honey72
Příspěvky: 6193
Registrován: 26.12.2015 0:06:38
Bydliště: Trutnov - 17 km od polské dálnice a 29 km od české.

Re: [D0] 518, 519 Ruzyně - Suchdol - Březiněves

Příspěvek od Honey72 »

Vizualizace klame a místo tam poměrně je. I nyní je od silnice ke břehu asi 10-15 metrů a silnici lze posunout i blíž ke trati.
Letos máme výročí 88 let výstavby dálnic na českém území 1938-2026
Beekee
Příspěvky: 542
Registrován: 11.10.2019 0:03:50

Re: [D0] 518, 519 Ruzyně - Suchdol - Březiněves

Příspěvek od Beekee »

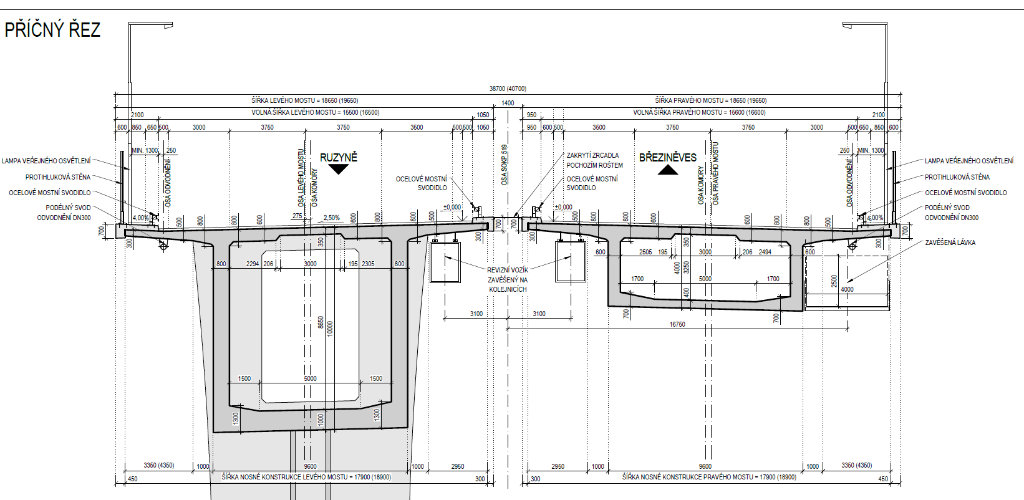
Tak ještě jeden řez.
Jinak jsem myslel, že se tvrdilo, že se jim podařilo umístit pilíře tak, že budou mimo ta chráněná území. A teď koukám, že né tak docela (ani v alternativní variantě).

Most TES 2022 PR.png
Most TES 2022 PR.png (110.6 KiB) Zobrazeno 2990 x

a detail...
Most TES 2022 PR Roztocka.png
Most TES 2022 PR Roztocka.png (37 KiB) Zobrazeno 2988 x
Lynx
Příspěvky: 4488
Registrován: 24.11.2016 8:02:29

Re: [D0] 518, 519 Ruzyně - Suchdol - Březiněves

Příspěvek od Lynx »

Pane beekee, děkuji Vám za výbornou vyhledávací práci. :ok:

Jsem rád, že to vyřešili takto. Takhle to vypadá vizuálně o dost lépe, než ten "patrák". Nemluvě o technické komplikovanosti s rozplety na obou stranách mostu.
Beekee
Příspěvky: 542
Registrován: 11.10.2019 0:03:50

Re: [D0] 518, 519 Ruzyně - Suchdol - Březiněves

Příspěvek od Beekee »

RM TW:

ŘSD dnes podalo žádost na MŽP o vydání společného stanoviska EIA na 15,2 km dlouhý úsek staveb “SOKP 518, 519 Ruzyně - Suchdol - Březiněves”. V případě vydání kladného stanoviska EIA začnou ihned práce na zpracování dokumentace pro společné povolení (umístění a povolení stavby).

https://twitter.com/MatlRadek/status/16 ... 2626817416
kot
Příspěvky: 13956
Registrován: 17.6.2010 0:19:32

Re: [D0] 518, 519 Ruzyně - Suchdol - Březiněves

Příspěvek od kot »

Tak to je slušný krok dopředu !! :P
Aram96
Příspěvky: 10438
Registrován: 13.8.2018 20:56:09
Bydliště: A88-R43-D43-I/43-I/73-?-?

Re: [D0] 518, 519 Ruzyně - Suchdol - Březiněves

Příspěvek od Aram96 »

Paráda, takže tak za 6 let zahájení stavby. :) :D

Jen doufám, že se změní délky těch přídatných pruhů v MÚK D0xD8. Ty byly některé fakt na facku.
michal
Příspěvky: 6129
Registrován: 14.3.2009 8:53:04

Re: [D0] 518, 519 Ruzyně - Suchdol - Březiněves

Příspěvek od michal »

Jen aby nedošlo na variantu, že to MŽP vůbec nepustí... :roll:
Mike
Příspěvky: 6063
Registrován: 15.3.2009 14:09:33

Re: [D0] 518, 519 Ruzyně - Suchdol - Březiněves

Příspěvek od Mike »

to asi nehrozí, ale škodičů se jistě najde dost
těch 6let vidím po 30letech čekání jako nemístný optimismus....
Česká zákonodárnost – odpovědným budiž ten, koho lze nejsnadněji chytit
Odpovědět

Zpět na „Pražský okruh D0“