VMO: Žabovřeská I, II. etapa
-
goldfinger
- Příspěvky: 433
- Registrován: 10.12.2019 1:24:50
Re: VMO: Žabovřeská I, II. etapa
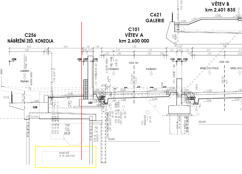
Ta kanalizace je pod vozovkou, nebo vedle? Protože pokud by nebyla přímo podkomunikací, tak se dá relativně rychle pracovat na druhém pásu. Divím se, že ještě nedemontovali nefunkční veřejné osvětlení.
Re: VMO: Žabovřeská I, II. etapa
//příspěvek smazán kvůli používání vulgarismů//
Re: VMO: Žabovřeská I, II. etapa
Díky za podrobnosti pane kolego
Tedy žádná procházka růžovým sadem na pár dní.
Re: VMO: Žabovřeská I, II. etapa
Dost na jistotu bude pod.goldfinger píše: ↑11.8.2023 9:29:43 Ta kanalizace je pod vozovkou, nebo vedle? Protože pokud by nebyla přímo podkomunikací, tak se dá relativně rychle pracovat na druhém pásu. Divím se, že ještě nedemontovali nefunkční veřejné osvětlení.
Nemám sice žádné plány, ale kmenová stoka v této lokalitě je kmenová stoka B, která odkanalizovává vše z tohoto údolí tj. Žabovřesky, Komín, Jundrov, ale i Bystrc a Kníničky (dohromady >50 tis. obyv.) - měla by to být trubka kde se dá projít bez ohýbání. Takže pochybuji (pokud je na této straně řeky), že bude mimo silnici a navíc bych čekal docela hluboké uložení - přeci jen přípoje na ní budou z okolí gravitační a komín není o tolik vysoko...
Z toho mi plyne že letos se dočkáme tak max toho že režim 1+1 se zkrátí co nejblíže ke galerii z obou stran.
-
goldfinger
- Příspěvky: 433
- Registrován: 10.12.2019 1:24:50
Re: VMO: Žabovřeská I, II. etapa
Díky za upřesnění. Zkrácení 1+1 na zhruba 400 m by navodilo lepší situaci než při jízdě po provizorce.
Re: VMO: Žabovřeská I, II. etapa
Ta stoka má DN 3800, leckdo jí projde bez sehnutí.
Re: VMO: Žabovřeská I, II. etapa
No, spíš nevede pod vozovkou. Kanalizace je asi nejlíp vidět v řezu KR5, kde je úplně mimo profil komunikace. ALE to není neužší místo. Od místa řezu směrem na Žabiny jde nová vozovka blíž k hraně řeky a tedy i víc nad kanál - tady v délce cca 100 m osově vede cca v červené svislici. Pak se zas odklání. Každopádně nad kanalizací je ta PHS, takže... ten druhý pás bude stejně využit pro přístup techniky. Je to to poslední co budou dělat.goldfinger píše: ↑11.8.2023 9:29:43 Ta kanalizace je pod vozovkou, nebo vedle? Protože pokud by nebyla přímo podkomunikací, tak se dá relativně rychle pracovat na druhém pásu. Divím se, že ještě nedemontovali nefunkční veřejné osvětlení.
Re: VMO: Žabovřeská I, II. etapa
Beekee díky za jasné vysvětlení. / jinak ty jsi se dnes s řezy rozjel ! / 
Re: VMO: Žabovřeská I, II. etapa
Podle webu https://kopemezabrno.cz/2023/07/26/zaca ... abovreske/ by mělo stávající omezení platit do 22.8. Pak by mělo dojít ke změně. Na obou koncích galerie jsou už vidět vrstvy pro pokládku povrchu. Včetně nových usazených obrubníků po pravé straně směrem ke galerii ve směru od Žabin. Třeba změnou bude to, že se bude jezdit podobně jako před 1.8.ttc píše: ↑13.8.2023 13:53:41Dost na jistotu bude pod.goldfinger píše: ↑11.8.2023 9:29:43 Ta kanalizace je pod vozovkou, nebo vedle? Protože pokud by nebyla přímo podkomunikací, tak se dá relativně rychle pracovat na druhém pásu. Divím se, že ještě nedemontovali nefunkční veřejné osvětlení.
Nemám sice žádné plány, ale kmenová stoka v této lokalitě je kmenová stoka B, která odkanalizovává vše z tohoto údolí tj. Žabovřesky, Komín, Jundrov, ale i Bystrc a Kníničky (dohromady >50 tis. obyv.) - měla by to být trubka kde se dá projít bez ohýbání. Takže pochybuji (pokud je na této straně řeky), že bude mimo silnici a navíc bych čekal docela hluboké uložení - přeci jen přípoje na ní budou z okolí gravitační a komín není o tolik vysoko...
Z toho mi plyne že letos se dočkáme tak max toho že režim 1+1 se zkrátí co nejblíže ke galerii z obou stran.
Re: VMO: Žabovřeská I, II. etapa
Dnešní stav na severu...
- Přílohy
-
- 20230817_172520.jpg (124.95 KiB) Zobrazeno 6139 x
-
- 20230817_172458.jpg (157.03 KiB) Zobrazeno 6139 x
-
- 20230817_172440.jpg (149.67 KiB) Zobrazeno 6139 x
Re: VMO: Žabovřeská I, II. etapa
Jižní strana...
- Přílohy
-
- 20230817_172814.jpg (133.16 KiB) Zobrazeno 6176 x
-
- 20230817_172807.jpg (189.82 KiB) Zobrazeno 6176 x
Re: VMO: Žabovřeská I, II. etapa
podle včerejšího ranního průjezdu si myslím že toho 22.8. zprovozní přejezd SDP na jižní (pisárecké) straně galerie, resp. kus za galerií, zatímco ten severní možná bude o něco málo později, ale třeba nás překvapí
Re: VMO: Žabovřeská I, II. etapa
Dnes odpoledne již na jižním přejezdu kompletně hotový obrus (viz foto). Severní přejezd vypadá od včerejška beze změn.
- Přílohy
-
- 20230818_170417.jpg (118.19 KiB) Zobrazeno 5819 x
-
- 20230818_170410.jpg (140.38 KiB) Zobrazeno 5819 x
-
mravenecnik
- Příspěvky: 95
- Registrován: 10.11.2020 10:31:12
Re: VMO: Žabovřeská I, II. etapa
Dnes ráno průjezd novým pruhem a galerií volný.
Re: VMO: Žabovřeská I, II. etapa
Z ranního průjezdu: jižní strana vypadá připraveně na převedení dopravy (hotové i včetně VDZ). Na severní straně položena vrstva MZK, převedení dopravy bude tedy později...
-
komeťák777
- Příspěvky: 60
- Registrován: 3.5.2020 11:28:20
Re: VMO: Žabovřeská I, II. etapa
Jih v provozu
Re: VMO: Žabovřeská I, II. etapa
Teď jsem jel přes Hlinky a tam ruši značeni a jednosměrku.
Re: VMO: Žabovřeská I, II. etapa
Včera odpoledne byla kolona až do poloviny Hradecké, tak snad to bylo tím, že se řidiči kochali novou úpravou a dnes už bude situace lepší.
Re: VMO: Žabovřeská I, II. etapa
Dnes už provoz plynulý, jel jsem teda od Bauerove, takže už zase trochu špunt na sjezdu z MÚK Hlinky, ale v pohodě. Protisměr plynulý s přejezdem na nový povrch na jihu. Na severu natáhli podkladovou vrstvu asfaltu (neznám správný termín, pardon) a vypadá to na brzké asfaltování. Překvapilo mě ale, že i po dokončení povrchu bude asi směr na Hlinky o pár (desítek) cm níže než tunel? Nebo to možná jen zkresluje.
Re: VMO: Žabovřeská I, II. etapa
Teď
- Přílohy
-
- 20230825_075359_copy_1024x485.jpg (176.83 KiB) Zobrazeno 4146 x
Re: VMO: Žabovřeská I, II. etapa
Omlouvám se za amatérský dotaz, ale nedá mi to. Jak se podle legislativy bere "silniční galerie"? U vjezdu do galerie je značka "IZ3a - Tunel", tak by mě zajímalo, jestli tam přibyde i značení o délce tunelu v obou směrech. Dá se tato galerie brát jako pátý brněnský (silniční) tunel? Děkuji. 
Re: VMO: Žabovřeská I, II. etapa
Aktual.
- Přílohy
-
- 20230825_150946_copy_1280x606.jpg (140.4 KiB) Zobrazeno 3932 x
-
- 20230825_150943_copy_1280x606.jpg (156.94 KiB) Zobrazeno 3932 x
Re: VMO: Žabovřeská I, II. etapa
smejky: když je to značené jako tunel, tak je to tunel
značení se asi bude dokončovat někdy v budoucnu.
-
goldfinger
- Příspěvky: 433
- Registrován: 10.12.2019 1:24:50
Re: VMO: Žabovřeská I, II. etapa
Rovinatost povrchu v galerii se mi zdá ne úplně špičková na rozdíl od nového koberce kolem MÚK Hlinky, který je OK. Nejel jsem tam ve špičkovém čase, ale pocitově se kolony zejména na pisárecké straně zkrátily. Z galerie bohužel není vidět postup prací na druhém pásu, asi si tam budu muset zajít.
Re: VMO: Žabovřeská I, II. etapa
Včera už bylo na severu naskládané betonové svodidlo, asfalt dorovnaný, VDZ zatím nebylo načmárané. Rovinatosti v galerii nevím, ale ty kanály, co jsou pod úrovní asfaltu, budou brzo vymlácený...